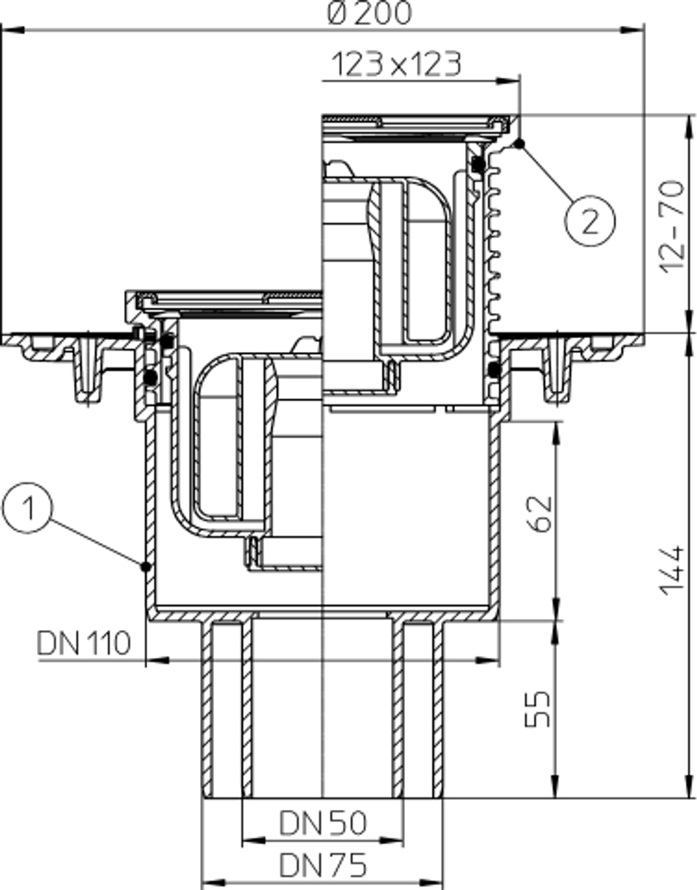
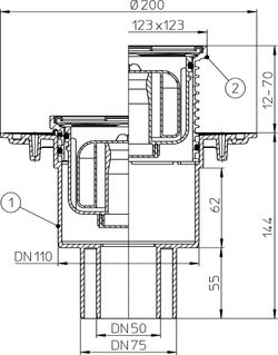
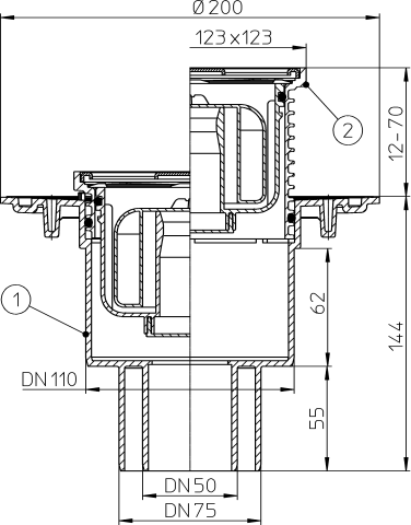
Вертикальный трап HL310NPr укомплектован сухим затвором - сифоном типа Primus, внутри корпуса которого, находится поплавок с воздухом. При сливе воды поплавок приподнимется и пропускает воду, при пересыхании затвора (отсутствии воды), поплавок садится и надежно герметизирует поступление канализационных запахов.
Надставной элемент трапа и его подрамник выполнены из полипропилена, уплотнительное кольцо - резина. Высота надставного элемента трапа регулируется (подрезается по высоте стяжки) от 12 до 70 мм.
Корпус трапа, с «тарелкой» для подхвата гидроизоляции, выполнены из полиэтилена.
Температура стоков - не более +85°С (возможен кратковременный сток вод с температурой до +100°С, но для объема слива - 100-200 литров).
Технические характеристики трапа HL310NPr:
- Выпуск - вертикальный DN 50/75/110;
- Материал трапа - полипропилен, полиэтилен;
- Материал решетки - нержавеющая сталь;
- Размер решетки - 115×115 мм;
- Пропускная способность - 0,5 л/с или 30 л/мин;
- Затвор - сухой, сифон Primus;
- Температура стоков - до +85°C, кратковременно до +100°C;
- Класс нагрузки - до 300 кг;
- Вес - 0,7 кг;
Для заказа товара HL310NPr Трап c сухим сифоном Primus, позвоните нам по телефону или оставьте свой заказ на сайте
